APPARTAMENTO 3 CAMERE DA LETTO CON GRANDE BALCONE

Via Manlio Dazzi
  • Appartamento
  • Tipologia
  • 4
  • Vani
  • 2
  • Bagni
  • 112
  • 2011
  • Anno di costruzione
in vendita VENDUTO
APPARTAMENTO 3 CAMERE DA LETTO CON GRANDE BALCONE
Via Manlio Dazzi

Descrizione

APPARTAMENTO 3 LETTO CON GRANDE BALCONE

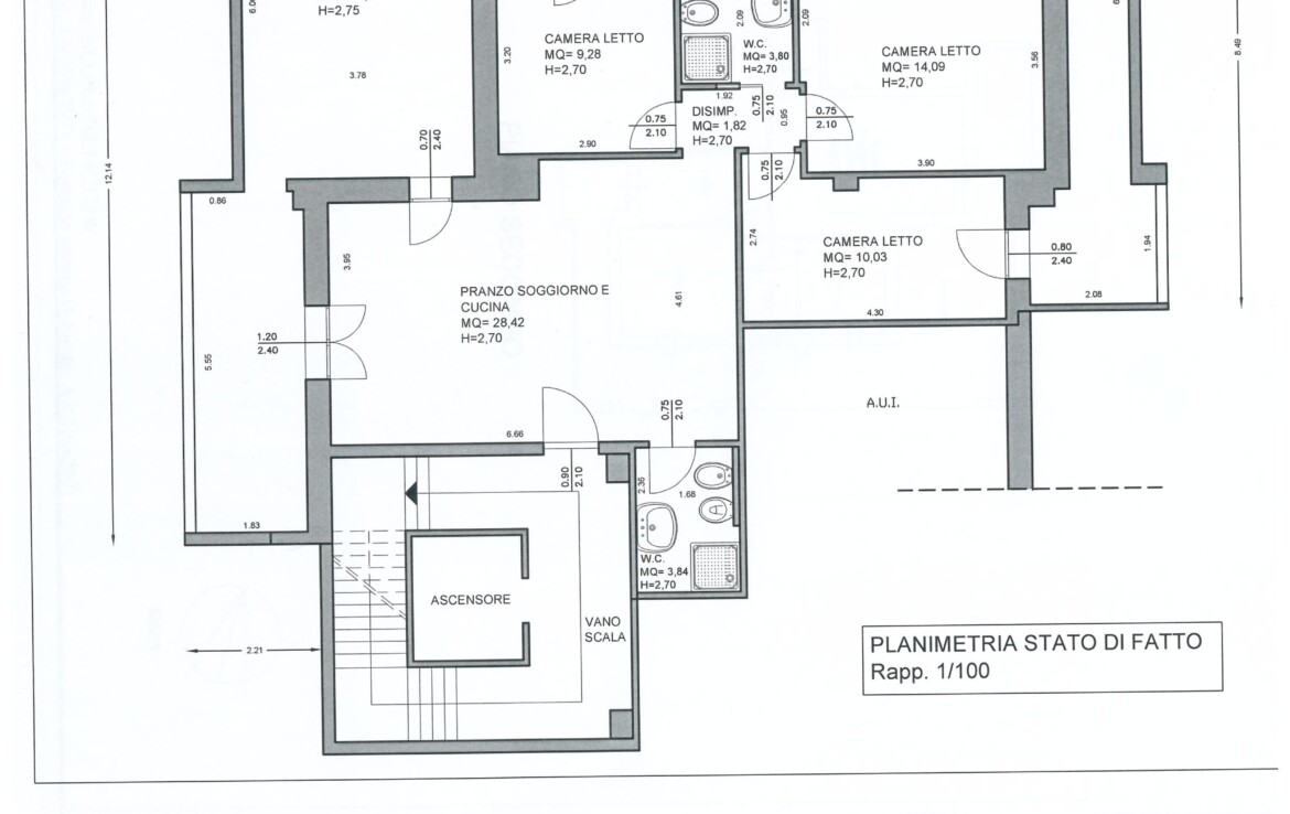
SANT’EGIDIO – In contesto residenziale del 2011 proponiamo in vendita bellissimo appartamento come nuovo, dotato di uno splendido balcone. L’immobile si trova al secondo piano di una palazzina con ascensore ed è composto da ampio soggiorno con angolo cottura, tre camere da letto, due bagni. Il balcone misura complessivamente 62 mq, di cui una parte (25 mq), accessibile dalla zona cucina e godibile per pranzi o cene con amici o semplicemente come solarium. L’appartamento ha finiture di pregio ed è accessoriato con tutti gli optional: aria condizionata, allarme, zanzariere, scuroni in pvc con lamelle orientabili, impianto di riscaldamento a pavimento, illuminazione in contro-soffitto nella zona giorno. L’esposizione est-sud-ovest lo rende decisamente luminoso. Completano l’offerta due garage al piano interrato, ciascuno di mq 13.

Dettagli

ID Immobile
VA2000
Vani
4
Bagni
2
Dimensioni proprietà
112 m²
Anno di costruzione
2011
Aggiornato il Luglio 9, 2022 at 11:32 am

Indirizzo

  • Città Cesena
  • Stato/regione Forlì-Cesena
  • Area Sant'Egidio

Informazioni di Contatto

Richiedi informazioni su questa proprietà

    Confronta Strutture

    Confronta
    admin
    • admin